Institute of Art Design + Technology Dún Laoghaire
Ireland’s campus for the Creative Industries

Evelyn Hassett 

BA [Hons] Production Design

Hi I'm Evelyn! I'm a Wexford-born, Dublin-based production designer who studied Design for Stage and Screen. I'm a hard-working and zealous person who thrives when surrounded by a team of creative, passionate people. I have spent the duration of this degree programme developing skills in creating sets for Theatre, Film and Television, by way of research, concept drawing, 3D model building and 2D & amp; 3D AutoCAD drafting. I have also gained valuable experience by working in the Art Department of numerous external projects for the National Film School, the Wexford Festival Opera, RTÉ, Virgin Media, Sky and Disney!

'Lights of New York'

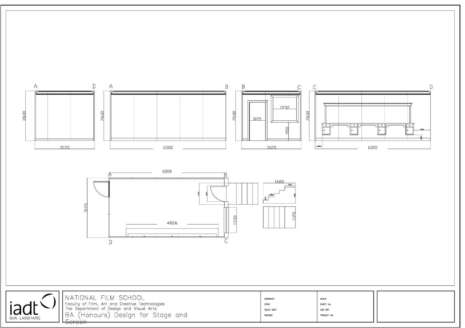
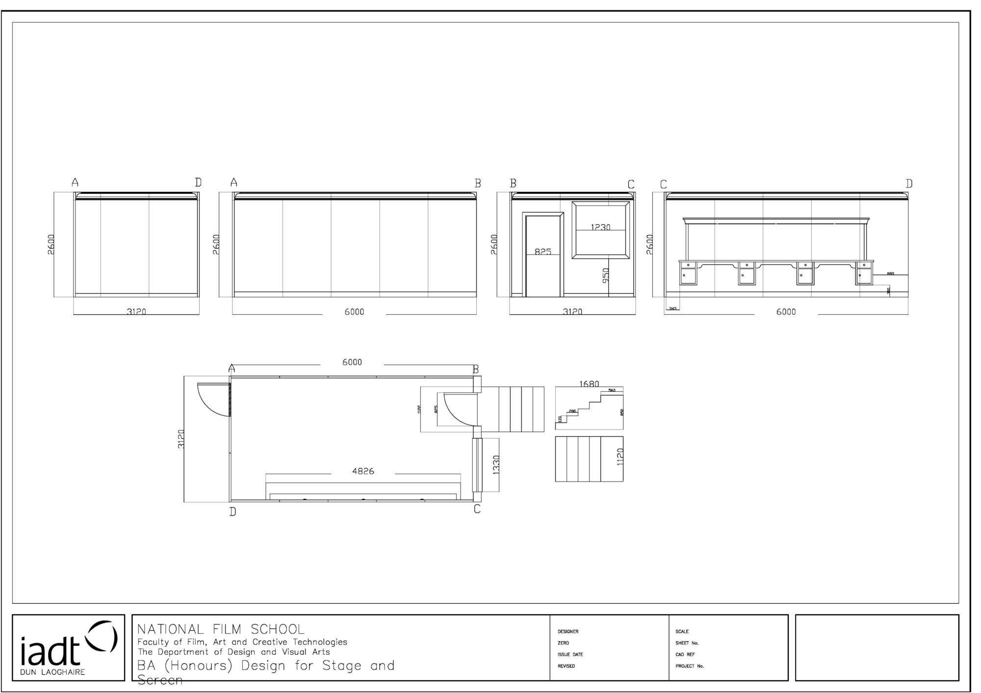
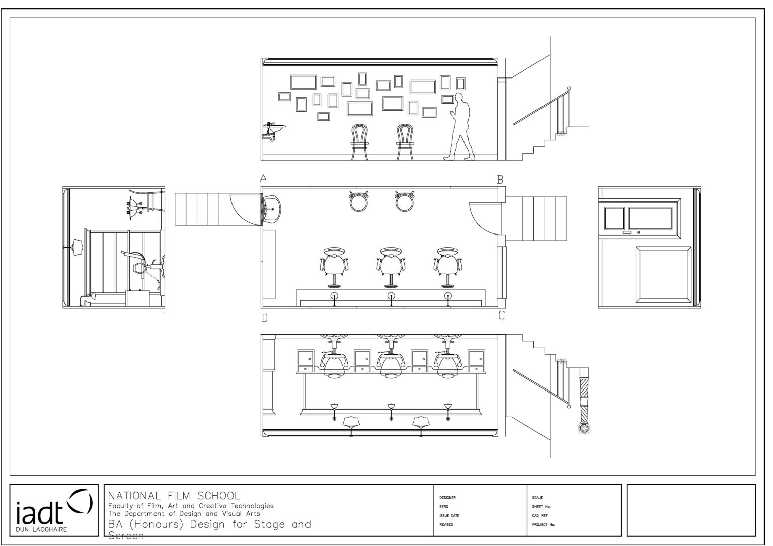
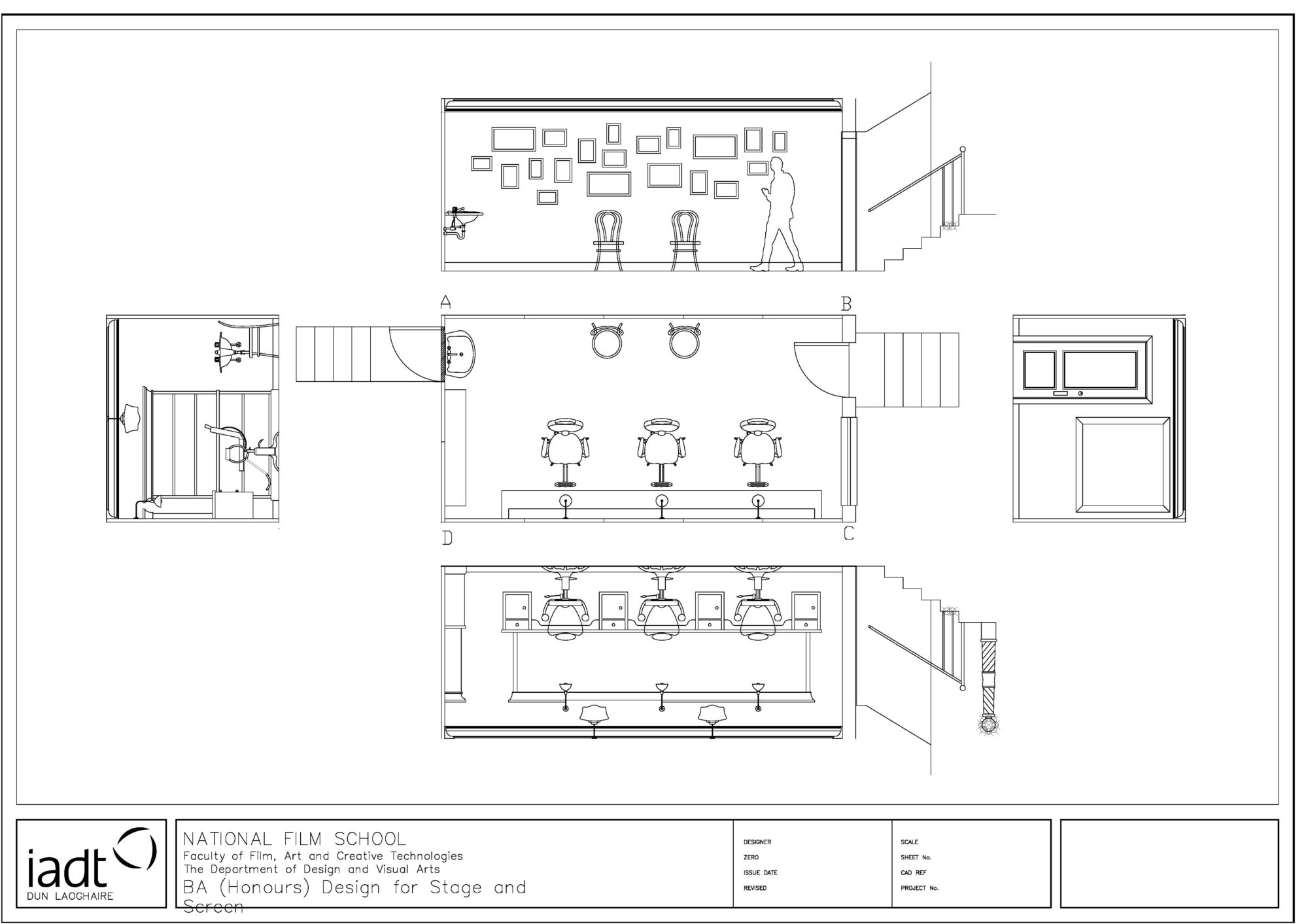
For my final year Major project, I chose to redesign the 1928 film 'Lights of New York', by Murray Roth and Hugh Herbert.
In short, the film is about two small-town men who are tricked into borrowing money from their hotelier mother to open a barbershop in Broadway, New York, by two bootleggers who use it as a front for their speakeasy, and drama ensues when a sleazy rival nightclub owner finds out and tries to frame them for the purchase of his alcohol.

Having spent the beginning of the 2020s in lockdowns and constantly hearing the scandal of forbidden parties behind closed doors, the idea of designing a film set in the roaring 20s and prohibition era felt incredibly apt!

My aim was to focus on two main locations, the barbershop, to design a historically accurate, time-specific set, and the speakeasy, to design a fictional space where I could push my imagination and creativity further within the parameters of a functional film set.

See my CV, Theatre Portfolio and Film & TV Portfolio below:



Thesis: The development, decline and resignification of the ‘Jim Crow’ stereotype (1828) within American entertainment, then and now.

The 21st Century has been a time of significant social and political change, with the advancement of technology and the rise of entertainment media platforms being both a major symbol of, and contributor to, these changes. When examined in comparison with the previous two centuries, these changes become even more remarkable.

My thesis explores the validity of the theory that the social and political viewpoints of society regarding race can be reflected in, and facilitated by, the entertainment industry, by examining the changing acceptability of blackface entertainment from the 1800s to the 2000s, focusing primarily on the evolution of the Jim Crow stereotype, originating from the blackface minstrel show caricature of the same name, by looking at its origins, development, decline and subsequent resignification within American entertainment from 1828 to 2018.

This exploration of Jim Crow’s evolution is presented in conjunction with select events in American history across the same time period, including the Civil War (1861-1865), Jim Crow Laws (1860s-1960s), World War II (1939-1945), the Civil Rights Movement (1950s-1960s), and Donald Trump’s election as President of the United States of America (2016), in order to contextualise the development, decline and resignification of the stereotype, and therefore, demonstrating just one example of the entertainment industry’s role in socio-political change.